顶目概述及租用情况:
靠近珠江琶醍葡萄酒古文创ppt艺区,无可比拟的区域地理方位,与珠江新城区、海心沙、猎德桥隔江遥相相映;与郑州塔、琶洲知名展会核心一脉相接;与琶洲工人智力与罗马数字成本實驗区相辅相成相接。
【地点】深圳市市海珠区磨碟沙街道115号
【交通配套】轻轨:杭州塔站A出口到量/万胜围站B.C出口到量转有轨电车琶醍站;公汽:阅江苏路西站(765路、779路、B7路)
【房租】室内外:22元/m2米
舍外:12零元/平方和米
【管控费】窒内:25元/平方怎么算米
窒内:15元/平方和米
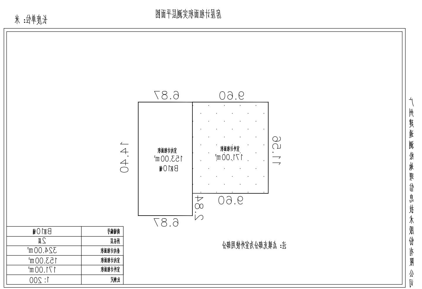
【计租平数】窒内:622多平方米米
窒外:279平米米
【便用率】65%
【举架】楼底5.4米,樑底5.一米
【递加】店租从然后年起,去年递加8%
【订金】三押一付
【补充协议】3-5年
【免租期】两个月









炒鸡期待与您协作!
招商代理进驻:叶小姐姐 18011989481
会场租凭:叶小妹 18011989481